Sparrow Hill, Loughborough Sparrow Hill, Loughborough

Sparrow Hill, Loughborough

0 bedroom Commercial Property for sale

£200,000

Key Features

  • Freehold Investment Opportunity
  • Commercial Property
  • Vacant Possesion
  • Shop Premises to the Ground Floor
  • Vast First Floor Space
  • Excellent Further Potential
  • Character Features
  • Assumed Class Use 'E'
  • Gated Courtyard Access
  • No Chain

Description

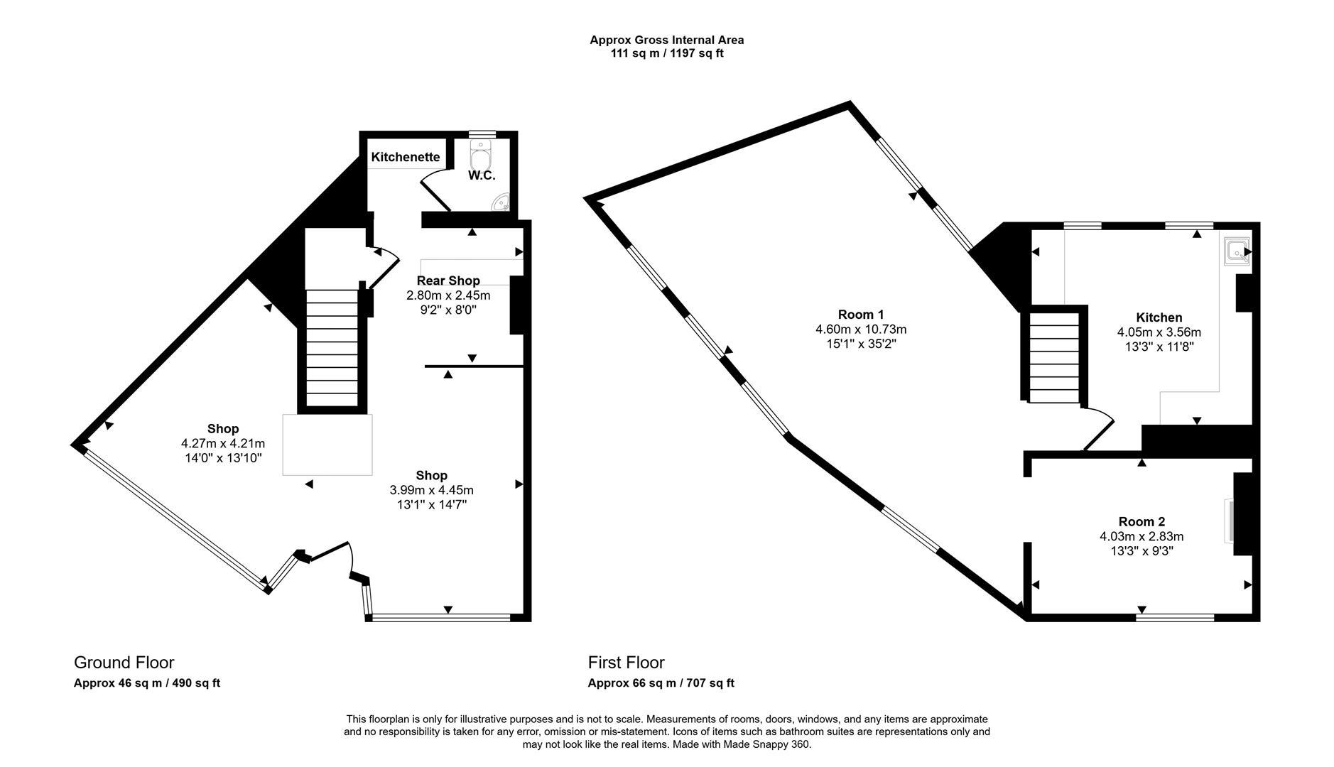
Shop

Set with a classic double window display area and a front door entrance from the street, with a storm porch, there is a large amount of space with tiled flooring and some character features.

Rear Shop

A further area which provides additional working space.

Kitchenette

A space to the rear of the property for staff and accessing the w/c.

W/c

Fitted with a low level flush w/c and wash hand basin.

First Floor Space

The First Floor has its own separate entrance door to the rear, accessed through an electric secure gated courtyard.

Kitchen

Providing a good sized area with space for a dining table, this is currently used as a staff room.

Room 1

A spacious room that is ready to renovate into a living/office space subject to planning.

Room 2

A good sized room with further potential.

The Area

Set at the heart of the town centre within this vibrant and bustling University Town. There are a range of shops and facilities on the doorstep, with excellent road access and public transport. The nearby Loughborough Midland Mainline Railway Station provides direct link to London St Pancras in approx 1hr40mins.

Extra Information

•Identification and Proof of Funding Required – All Vendors and Purchasers must provide proof of identity in line with The Money Laundering, Terrorist Financing and Transfer of Funds Regulations 2017. We will provide an online link or ask for physical evidence. We must see evidence of funding, either before a viewing, or at the point of an offer being made or accepted.
•Accuracy of Details – All descriptions, measurements, and floor plans are for guidance only and should not be relied upon as statements of fact.
•Services & Appliances – These have not been tested; buyers should commission their own surveys or reports.
•Legal Verification – All information is provided in good faith, from online sources and our Vendors and must be confirmed by the buyer’s solicitor before agreeing to purchase.
•DMCC Act 2024 – We are committed to providing all material information to assist buyers in making informed decisions.
•Offers & Contracts – These particulars do not form part of any contract or offer. Fixtures and Fittings are by separate negotiation. Please ask a member of the team if you want to check if an item is to be included in the sale.
•Flood Risk and Mobile Phone Signal - To check the Internet and Mobile coverage you can use the following link: https://checker.ofcom.org.uk/en gb/broadband-coverage
•To check any Flood Risks you can use the following link: https://check-long-term-flood risk.service.gov.uk/postcode
•Can you recommend a Solicitor? – Yes, We can recommend a number of local solicitors who we believe look after our clients, Speak to a member of our team and we can put you in touch with a solicitor for a ‘no obligation’ quote.
•Can you recommend a Mortgage Advisor – Yes, We work closely with Ben York, of Chamelo Mortgages, who looks after our clients! Ask a member of the team to arrange an appointment or call for you.
•Can you help me to sell my property? – Yes, Richard can provide an up to date valuation and market appraisal of your property, ask a member of the team and we will book an appointment for you.


Location


Floorplan

Floorplan

EPC


Video Tour


=======

Video Tour


>>>>>>> Stashed changes