DEVELOPMENT OPPORTUNITY DEVELOPMENT OPPORTUNITY

DEVELOPMENT OPPORTUNITY

3 bedroom Land (Residential) for sale

£400,000

  • 3 bedroom
  • 1 bathroom
  • 3 reception

Key Features

  • Unique Development Opportunity
  • Town Centre Location
  • Extensive Neighbouring Developments
  • Outstanding Potential
  • Subject to Planning Permissions
  • Three Bedroom Terraced House
  • Former Butchers Shop
  • Associated Outbuildings
  • 0.2 Acre Plot
  • No Upward Chain

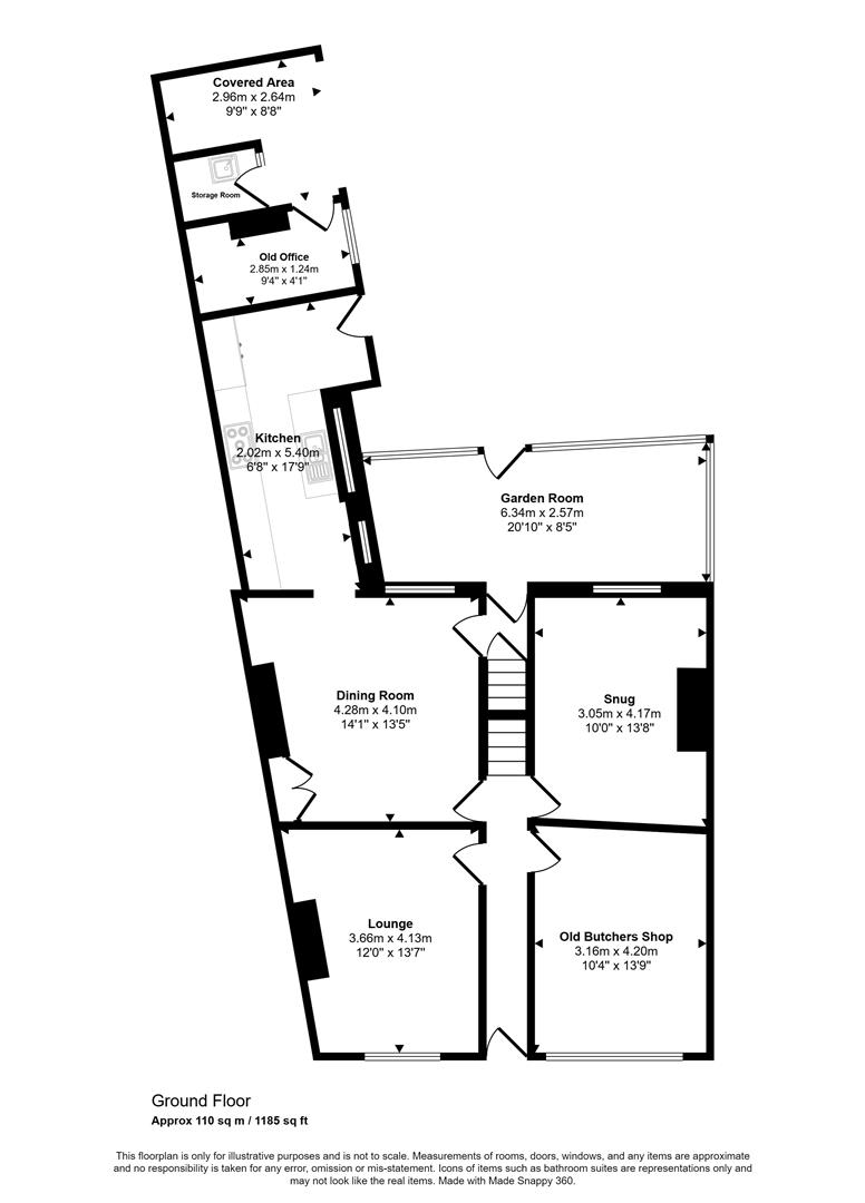
Description

Entrance Hall

With staircase to the first floor and access to-

Lounge

With window to the front and feature fireplace.

Former Butchers Shop

With an internal door from the hallway, a shop window and door frontage onto Cobden Street and a door to the covered side passage. The shop is very much in its original format, with fittings reminiscent of the original Butchers Shop.

Snug

With window to the rear and fireplace.

Dining Room

With a window to the rear, door to an inner lobby, which in turn gives way to the lean to Garden Room and staircase to the extensive Cellar.

Garden Room

A timber framed lean-to Garden Room overlooking the garden.

Kitchen

Fitted with a range of wall and base mounted units and laminate worktops. There is a window to the side and a door to the garden.

First Floor Landing

Giving way to -

Bedroom 1

A spacious double bedroom with window to the front.

Bedroom 2

A large double bedroom with window to the front.

Bedroom 3

A spacious double bedroom with window to the rear.

Bathroom

Fitted with a low level flush W/c, wash hand basin, bath and shower.

Shower Room

Fitted with a low level flush W/c, wash hand basin and shower cubicle.

Additional Rooms

To the rear portion of the property, there are two further first floor rooms, as yet undeveloped and intended to be a potential bedroom and bathroom. This could be continued as part of a wider development project.

Outside

The property fronts Cobden Street with an entrance door to the house and a separate 'shopfront' door to the old Butchers Shop. There is also a timber gated archway giving access front to rear, this also forms a shared pedestrian right of way for the neighbouring property. The rear garden is quite attractive, with a vast array of shrubs, plants and trees, lawn and patio. There is a timber cattle gate to the hardstanding area and outbuildings.

Outbuildings

A unique feature of this property is the vast range of outbuildings associated with the property's former function as the home, shop and workplace of a traditional Butchers. The outbuildings consist of various livestock keeping, handling, slaughter and processing buildings. There is a large garage and former cold store. These outbuildings lead out onto a concrete hardstanding area, with vehicular gated access onto Pinfold Jetty, in turn leading to Pinfold Gate. We understand Pinfold Jetty to be adopted by the Leicestershire Highways Authority and designated as a B.O.A.T. (byway open to all traffic) broadly meaning that it can be used by Pedestrians, Cyclists, Horse Riders and Motorised Vehicles. Any purchasers looking to develop the property are advised to make their own enquires and due diligence to ascertain the possibilities. Any development may be subject to necessary planning permissions and/or building regulations approval.

The Area

The property is set in a long established area of the town centre, surrounded by an eclectic mix of residential and commercial properties. Cobden Street is easily accessed from the new A6 Inner Ring Road. The property sits in a position only 5 minutes walk to the town centre, the Loughborough Midland Mainline train station is a short 15-20 min walk away, providing a direct link to London St. Pancras in only 1hr 40mins. There are numerous shops and conveniences nearby in the town centre. The University is also a short 20 min walk away.

Extra Information

The property is situated in the Loughborough Hastings Ward and is therefore subject to Selective Licensing with Charnwood Borough Council.

Extra Information

• Identification and Proof of Funding Required – All Vendors and Purchasers must provide proof of identity in line with The Money Laundering, Terrorist Financing and Transfer of Funds Regulations 2017. We will provide an online link or ask for physical evidence. We must see evidence of funding, either before a viewing, or at the point of an offer being made or accepted.
• Accuracy of Details – All descriptions, measurements, and floor plans are for guidance only and should not be relied upon as statements of fact.
• Services & Appliances – These have not been tested; buyers should commission their own surveys or reports.
• Legal Verification – All information is provided in good faith, from online sources and our Vendors and must be confirmed by the buyer’s solicitor before agreeing to purchase.
• DMCC Act 2024 – We are committed to providing all material information to assist buyers in making informed decisions.
• Offers & Contracts – These particulars do not form part of any contract or offer. Fixtures and Fittings are by separate negotiation. Please ask a member of the team if you want to check if an item is to be included in the sale.
• Flood Risk and Mobile Phone Signal - To check the Internet and Mobile coverage you can use the following link: https://checker.ofcom.org.uk/en gb/broadband-coverage
• To check any Flood Risks you can use the following link: https://check-long-term-flood risk.service.gov.uk/postcode
• Can you recommend a Solicitor? – Yes, We can recommend a number of local solicitors who we believe look after our clients, Speak to a member of our team and we can put you in touch with a solicitor for a ‘no obligation’ quote.
• Can you recommend a Mortgage Advisor – Yes, We work closely with Ben York, of Chamelo Mortgages, who looks after our clients! Ask a member of the team to arrange an appointment or call for you.
• Can you help me to sell my property? – Yes, Richard can provide an up to date valuation and market appraisal of your property, ask a member of the team and we will book an appointment for you.


Location


Floorplan

Floorplan Floorplan Floorplan Floorplan Floorplan Floorplan Floorplan Floorplan Floorplan Floorplan

EPC

EPC for DEVELOPMENT OPPORTUNITY

Video Tour


=======

Video Tour


>>>>>>> Stashed changes

Similar Properties

Lower Cambridge Street, Loughborough
For Sale

Lower Cambridge Street, Loughborough

2 Bed Terraced House For Sale
Guide price £165,000
Sunnyhill Road, Loughborough
For Sale

Sunnyhill Road, Loughborough

3 Bed Detached bungalow For Sale
Guide price £395,000
Holland Close, Loughborough
For Sale

Holland Close, Loughborough

2 Bed Flat For Sale
Guide price Offers over £130,000